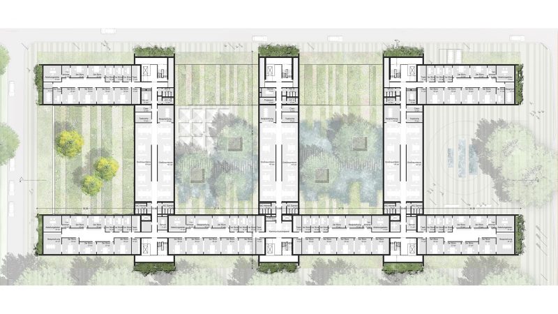
HEIDELBERG CEMENT, 2015

Wettbewerb

2015

NEUBAU KONZERNZENTRALE

Nächstes Projekt:WOHNHEIM, TURLEY-BARRACKS, 2017
Preload Image

Preload transition image
Wir verwendet Cookies, um die bestmöglichen Darstellung und Benutzung der Seite zu gewährleisten. Wenn Sie auf der Seite weitersurfen stimmen Sie der Cookie-Nutzung zu.
Ok Mehr Infos